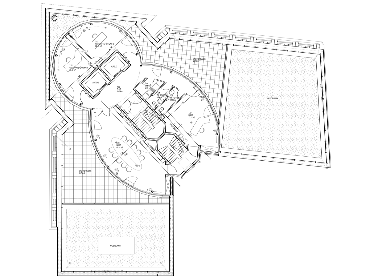
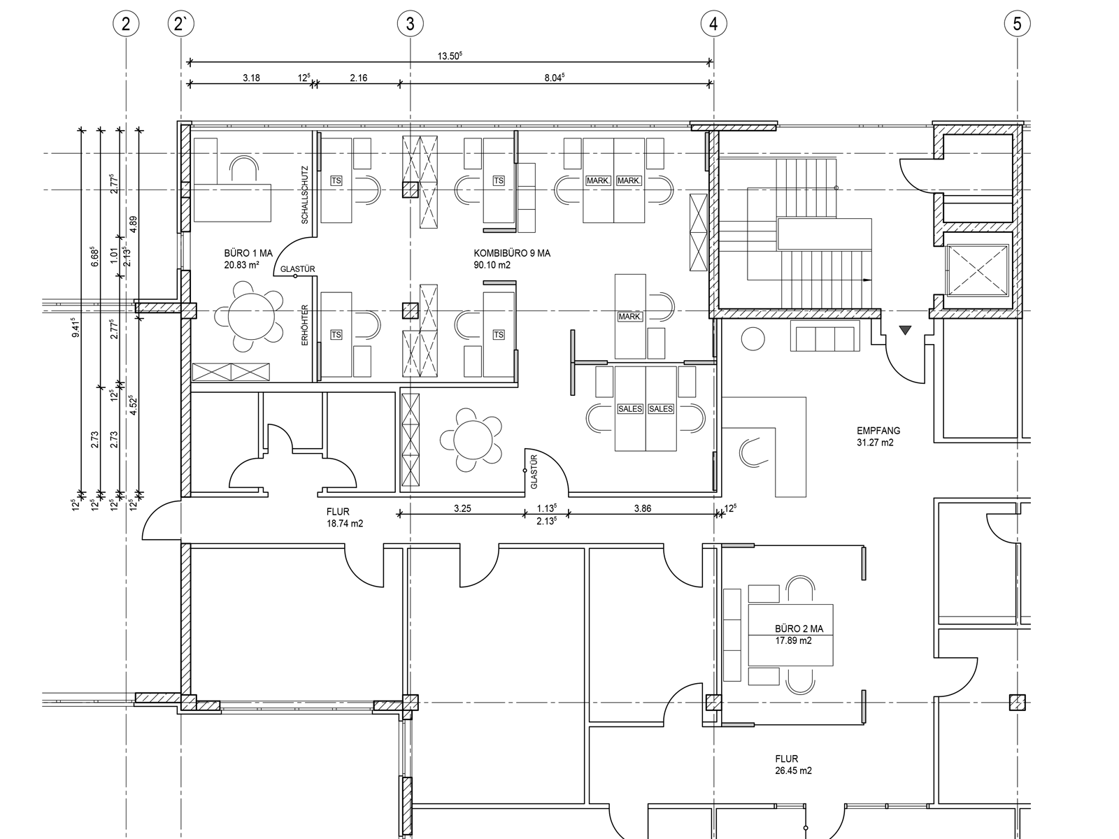
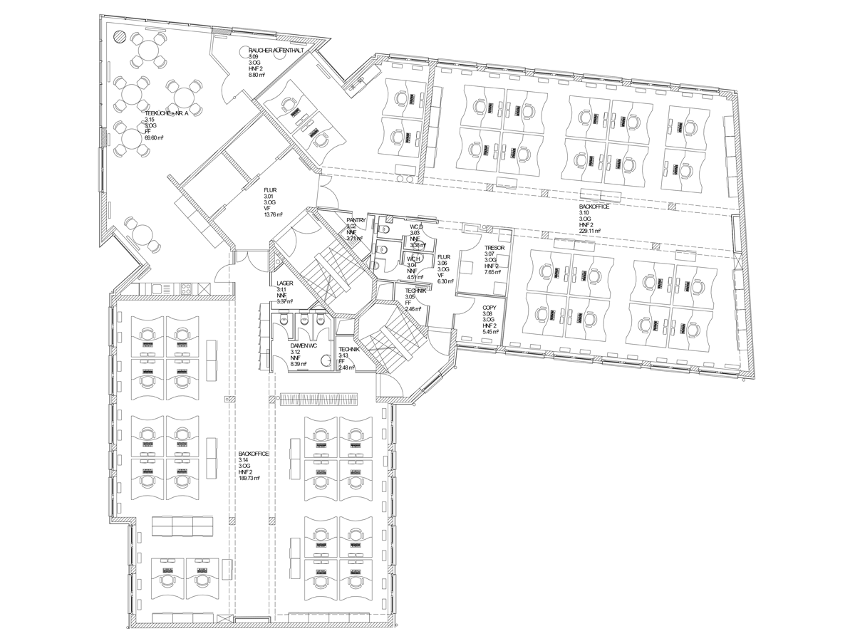
Mietbereichsausbau
Der Umbau und die Modernisierung bestehender Büros, Kanzleien und Praxen aufgrund neuer Anforderungen oder Mietvertragsanpassungen wird von uns regelmäßig geplant und betreut.
Erweiterungsneubau
Bei Bedarf an weiteren Nutzflächen im Bestand oder die Optimierung der Grundstücksausnutzung kann durch uns mit einer Erweiterung Ihres bestehenden Gebäudes realisiert werden.
Neubauvorhaben
Für ein Bauvorhaben genau nach Ihren Wünschen entwerfen, beantragen und koordinieren wir Ihr Gebäude bis zur Abnahme und Abrechnung der Firmenleistungen.
Controlling
Eine unabhängige Begleitung von externen Planungsleistungen oder der Bauausführung erbringen wir für Sie mit einem technischen oder kaufmännischen Controlling.
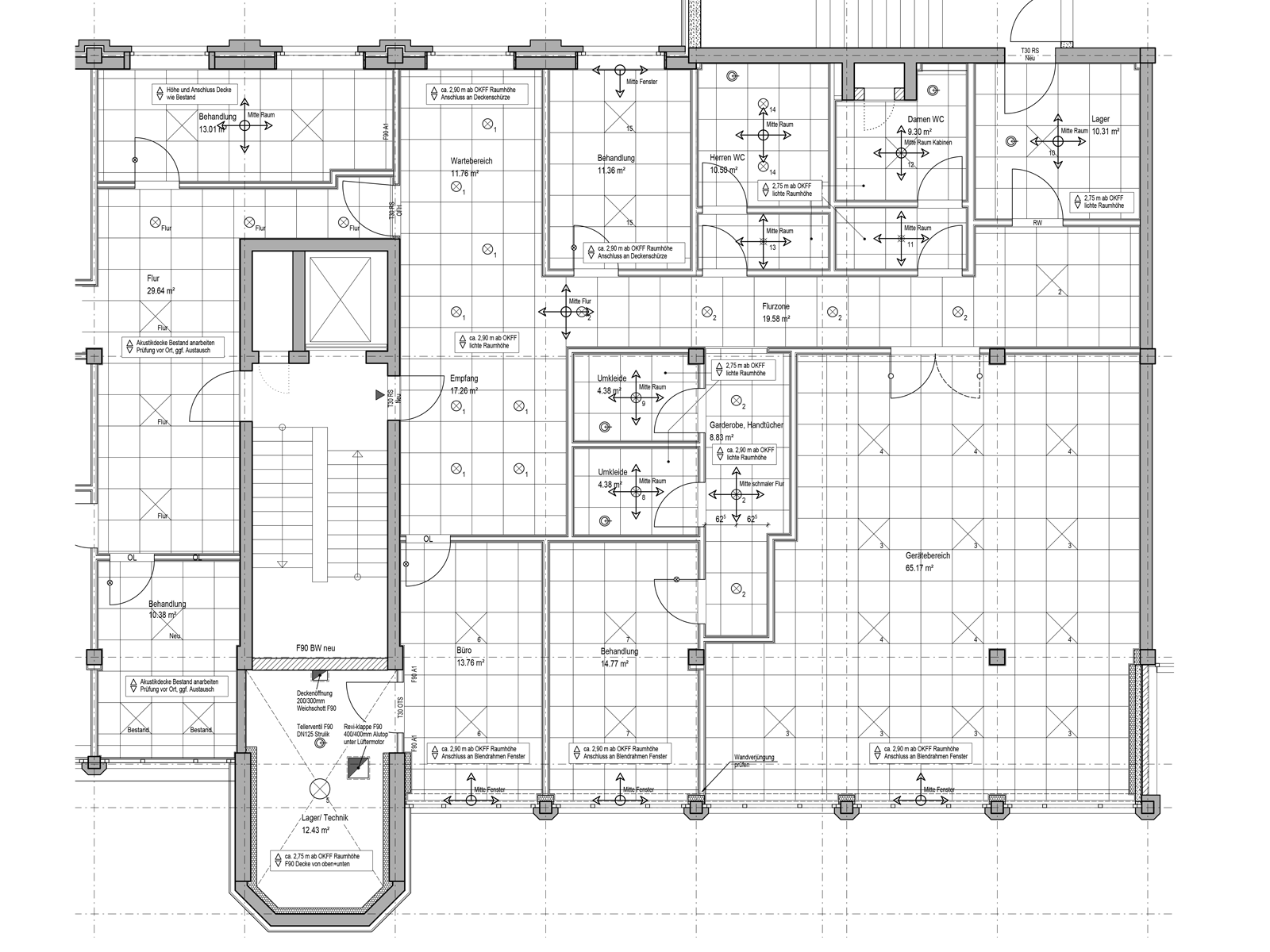
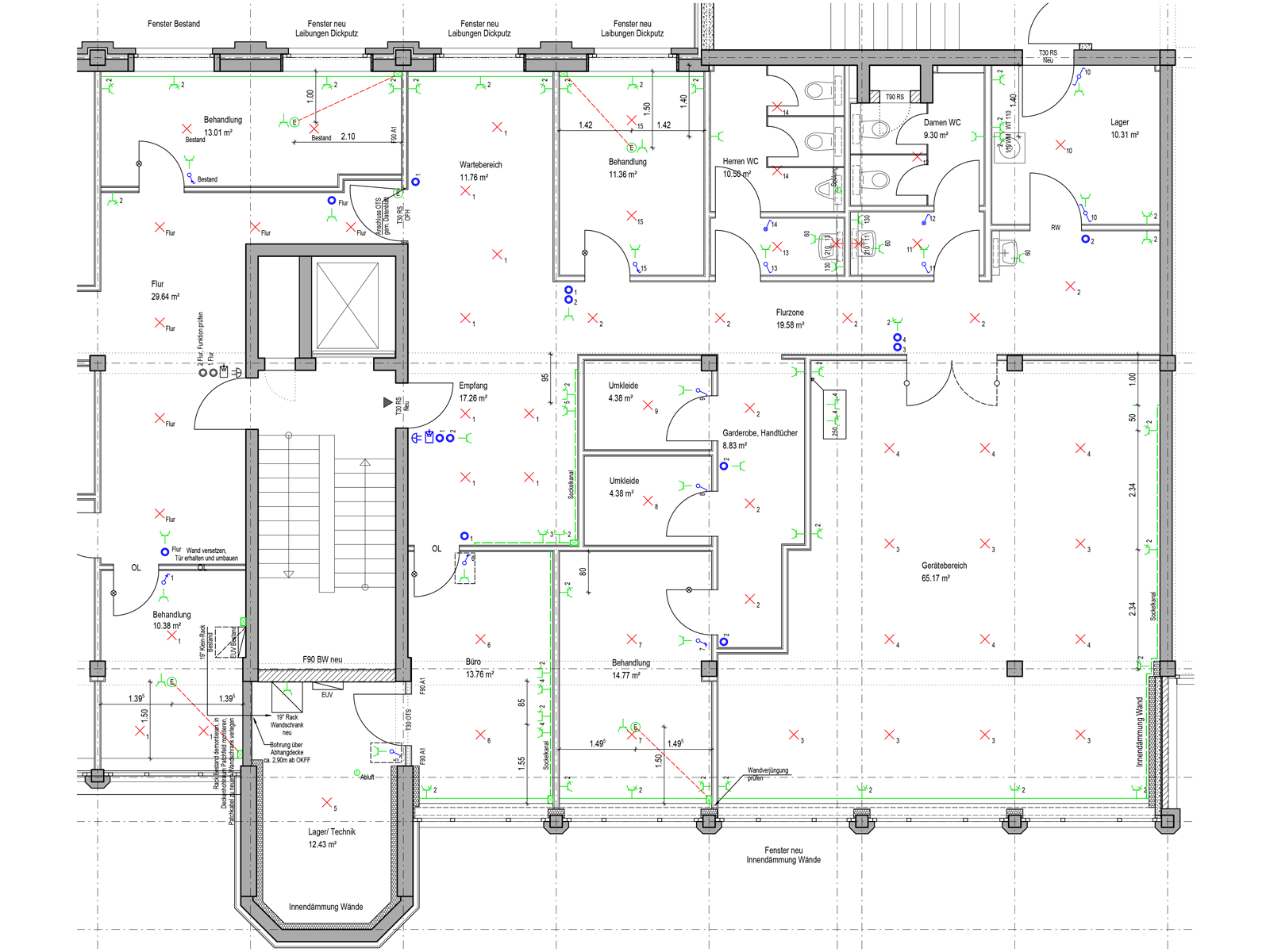
Fachplanung
Im Rahmen der von uns betreuten Bauvorhaben erbringen wir auf Wunsch auch die notwendigen technischen Leistungen der Fachplanung und koordinieren die anderen Beteiligten.
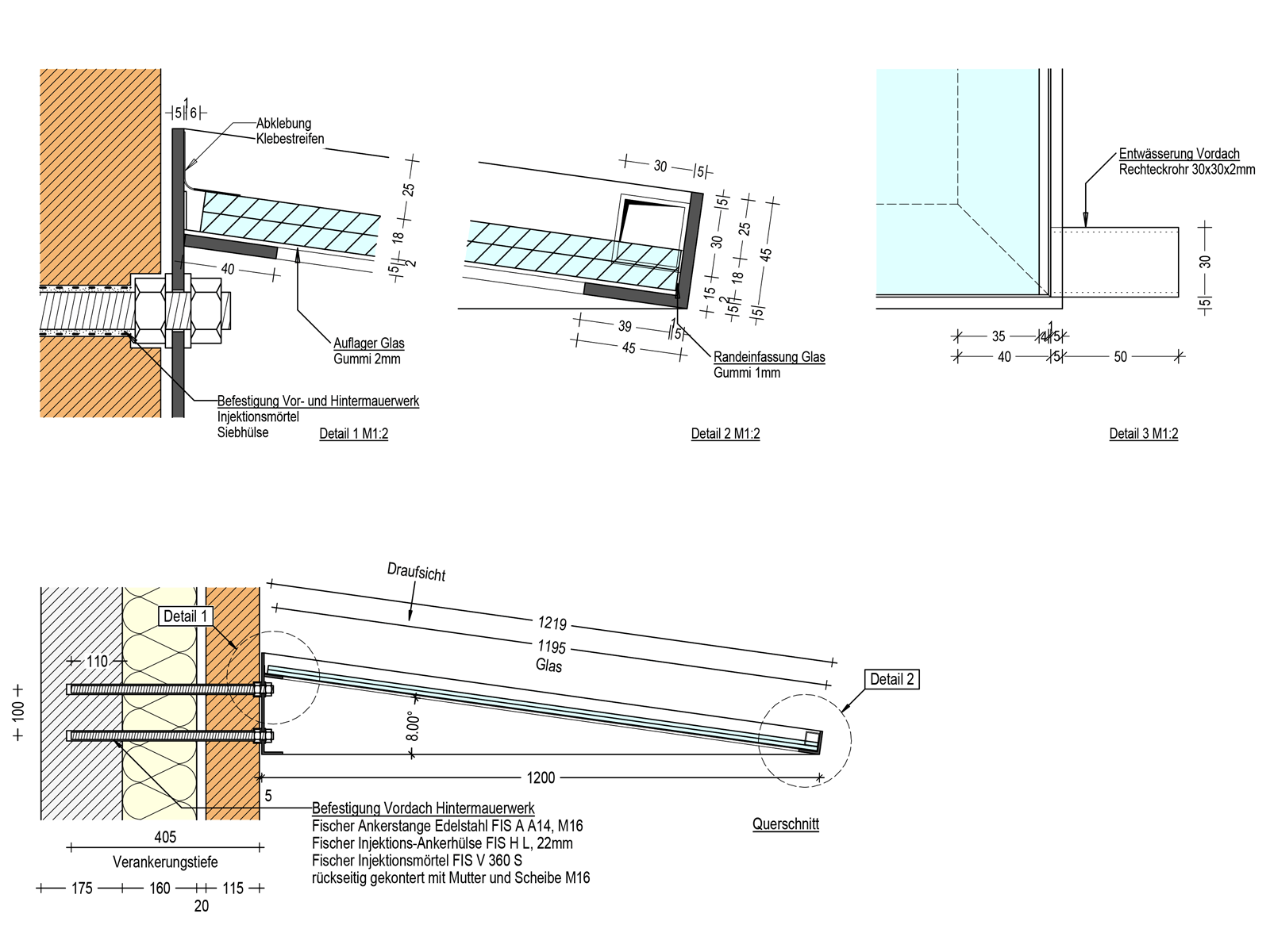
Detailplanung
Vom Städtebau bis ins Detail: die exakte Planung der Ausführung fördert die genaue Realisierung Ihrer Wünsche und reduziert Ungenauigkeiten in der Ausführung.










